「たかさごのECOテクノロジー」を
お求めやすい価格で
「たかさごのECOテクノロジー」がお求めやすい価格になりました。
外断熱・二重通気工法の住心地はそのままに、高いコストパフォーマンスを実現します。

西川材×外断熱・二重通気工法の住み心地はそのままに、
新発想のスケルトンインフィルの技法「U-FITデザイン」によって優れた
コストパフォーマンスを実現した「彩樹の家 Forest Family」。
外断熱・二重通気工法の住み心地と
日本の気候風土にあった木造軸組工法で森のような安らぎを、
お求めやすい価格でお届けします。

たかさごオリジナル
U-FITデザインとは?
ユニットを暮らしやライフスタイルに
フィットさせる設計で叶える家づくり
フォレストファミリーは、たかさごオリジナルの新発想「U-FITデザイン」を採用した、
優れたコストパフォーマンスと高性能を同時に叶えたベストバランス住宅です。
スケルトンインフィルの技法を取り入れた、耐震性能を備えた構造と、
フレキシブルな設計手法で、自由に空間をゾーニング。
ご家族の理想の暮らしやライフスタイルにフィットさせる新しいスタイルの家づくりのカタチです。
Forest Familyが実現する5つのポイント
技術が支えるやさしい暮らし
-

健康/ Healthy
温度差の少ない快適空間
外断熱・二重通気工法で、家全体の温度差を減らし、
見えないところの結露を防ぎ、アレルギーなどの健康被害リスクを低減します。 -

美容/ Beauty
ぐっすり眠れる室内環境
安定した室温を保つことにより、温度ストレスを減らし、
快適な睡眠環境を整えます。 -

持続/ Sustainability
薬剤ゼロの健康住宅
薬剤を使う一般的なシロアリ対策は使わず、物理的なシロアリ防止対策を採用。
家の中に薬剤を撒かないことで、空気環境を汚しません。 -

エネルギー/ Energy
エネルギーをマネジメント
節電目標の設定、電気使用量の見える化などを実現するHEMSを標準装備。
賢く、快適に、エネルギーをコントロールします。 -

くつろぎ/ Relaxation
家族が一番快適な空間
住まいにとって大切なのは、性能よりもその遥か先のこと。
私たちが創るのは、ご家族にとって何が必要なのかを考えた住まいです。

モデルハウス
暮らしに利便性と愉しさをプラスした、
フォレストファミリーの空間設計に
ソーラーサーキット工法の快適さと
西川材の優しさをミックスした新しい住まい。
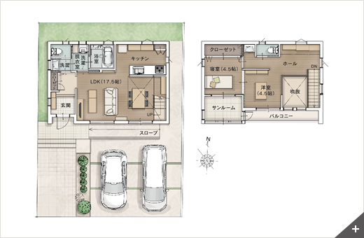
- ■1階床面積 53.27m²(16.11坪)
- ■2階床面積 49.95m²(15.10坪)
- ■延床面積 103.22m²(31.22坪)
参考プラン
-


陽当りの良い2階には、物干しはもちろん
観葉植物などのボタニカルライフも楽しめるアイディア空間を。
01. 吹き抜けのあるLDKは、明るく開放感たっぷり。
02. 広いサンルーム、バルコニーで外空間を満喫。 -


アウトドアデッキと開放感ある室内を緩やかに繋げ
リゾート感溢れる暮らしを楽しむ。
01. 外のウッドデッキと繋がる土間アプローチは、外と内を全て使いこなすための空間。
02. 2階リビングから出入りできるバルコニーは、プライベートを確保しながら開放感を演出。 -


家事育児、そして仕事に忙しい共働き夫婦のための
コミュニケーションが生まれるアトリエプラン。
01. キッチンにいながらお子様の様子が見える、アトリエスペースを用意。
02. 水まわりを集中させて、リラックススペースと分離。 -


料理をしながら、洗う・干す・たたむを
ストレスフリーにする家事時短間取り
01. 1階は大型収納+3部屋でゆとりの空間設計に。
02. 2階LDKは陽当たりも良好な明るい空間。





















